Dayfran
DAYFRAN Ingeniería & Fabricación Industrial Industrial Engineering & Fabrication

Portafolio

Portfolio

Proyectos de Ingeniería,

Engineering, Fabrication

Fabricación y Mantenimiento

& Maintenance Projects

Dos décadas de experiencia ejecutando proyectos para el sector petrolero e industrial de Venezuela.

Two decades of experience executing projects for Venezuela's oil & gas and industrial sectors.

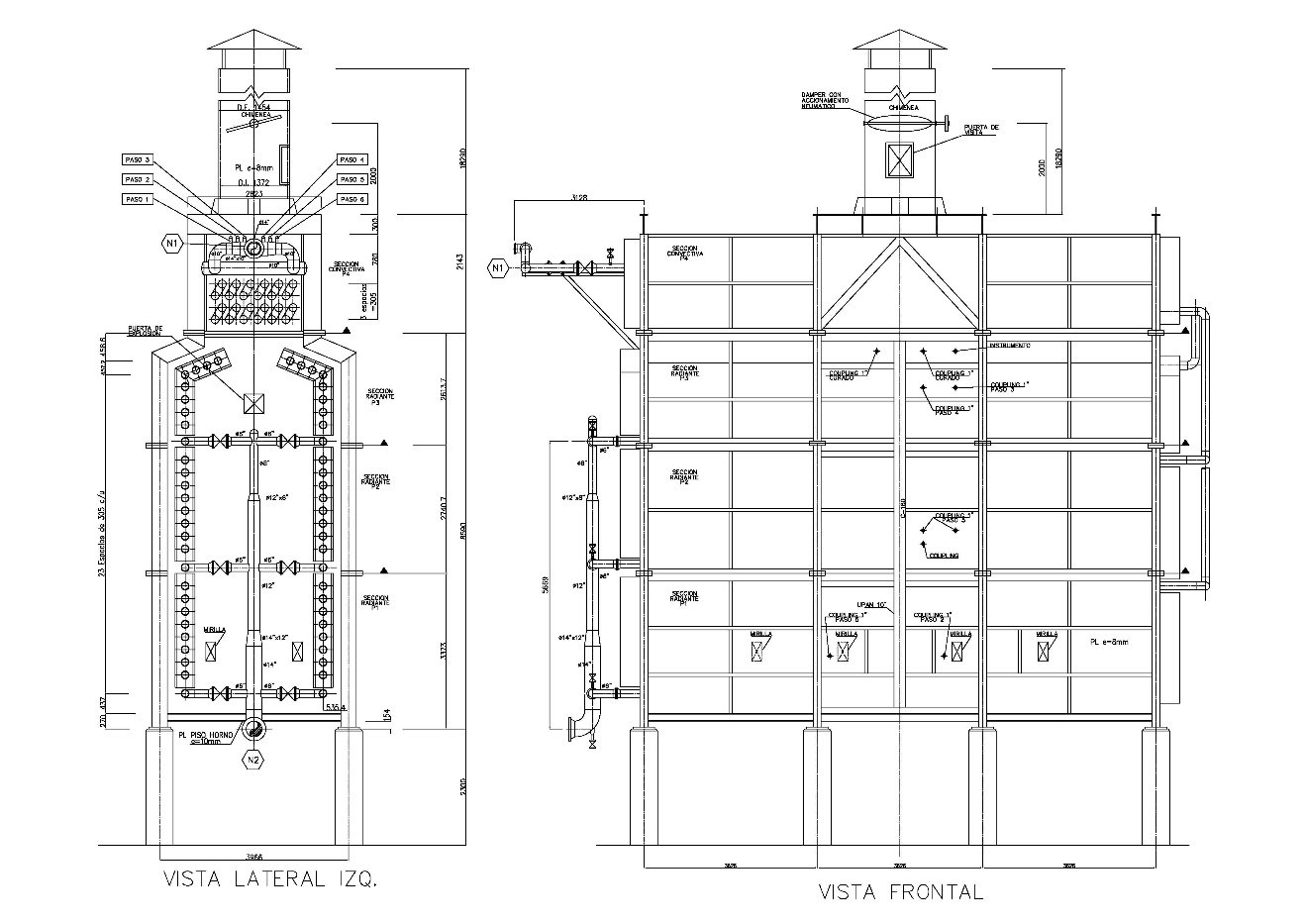
Horno Budare II 25,000 BPD
Ingeniería y Fabricación Engineering & Fabrication 2007
Horno Budare II — 25,000 BPD
Budare II Heater — 25,000 BPD
Cliente: PDVSA – CONFAB
Client: PDVSA – CONFAB

Diseño y fabricación de un calentador de fuego directo bajo norma API 560 para la estación Budare II, una de las áreas de producción más exigentes de PDVSA. Este equipo fue clave para el tratamiento térmico de crudo pesado de 16° API en las etapas de producción temprana del campo.

Design and fabrication of a direct-fire heater per API 560 for the Budare II station, one of PDVSA's most demanding production areas. This equipment was critical for thermal treatment of 16° API heavy crude during early production stages.

  • Horno API 560 de fuego directo, 25,000 Barriles/día
  • Direct-fire API 560 heater, 25,000 Barrels/day
  • Crudo 16° API · 20% Agua y Sedimento (BS&W)
  • 16° API crude oil · 20% Water & Sediment (BS&W)
  • Temperatura: 200°F · Caída de presión: 15 PSI
  • Temperature: 200°F · Pressure drop: 15 PSI
  • 2 pasos · Serpentín de 6" de diámetro
  • 2-pass · 6" coil diameter
  • Utilizado para producción temprana
  • Used for early production
  • Alcance: Ingeniería, fabricación, instrumentación, arranque y puesta en marcha
  • Scope: Engineering, fabrication, instrumentation, startup & commissioning
Horno OED-16 20,000 BPD
Ingeniería y Fabricación Engineering & Fabrication 2008
Horno OED-16 — 20,000 BPD
OED-16 Heater — 20,000 BPD
Cliente: PDVSA – CONFAB
Client: PDVSA – CONFAB

Calentador de fuego directo API 560 diseñado para la estación OED-16, optimizado para crudo de 20° API. El alcance completo incluyó ingeniería, fabricación, instrumentación y puesta en marcha, entregando una solución llave en mano.

Direct-fire API 560 heater designed for the OED-16 station, optimized for 20° API crude. The full scope included engineering, fabrication, instrumentation and commissioning, delivering a turnkey solution.

  • Horno API 560 de fuego directo, 20,000 Barriles/día
  • Direct-fire API 560 heater, 20,000 Barrels/day
  • Crudo 20° API · 20% Agua y Sedimento (BS&W)
  • 20° API crude oil · 20% Water & Sediment (BS&W)
  • Temperatura: 180°F · Caída de presión: 15 PSI
  • Temperature: 180°F · Pressure drop: 15 PSI
  • 2 pasos · Serpentín de 6" de diámetro
  • 2-pass · 6" coil diameter
  • Utilizado para producción temprana
  • Used for early production
  • Alcance: Ingeniería, fabricación, instrumentación, arranque y puesta en marcha
  • Scope: Engineering, fabrication, instrumentation, startup & commissioning
Mantenimiento Horno Budare II 18,000 BPD
Mantenimiento Maintenance 2010
Mantenimiento Horno Budare II — 18,000 BPD
Budare II Heater Maintenance — 18,000 BPD
Cliente: PDVSA – CALORTECH
Client: PDVSA – CALORTECH

Mantenimiento mayor del calentador Budare II para restaurar su capacidad de procesamiento. El trabajo incluyó la inspección, reparación y reacondicionamiento del serpentín de 4 pasos y los sistemas de control asociados.

Major maintenance of the Budare II heater to restore its processing capacity. The work included inspection, repair and reconditioning of the 4-pass coil and associated control systems.

  • Horno API 560 de fuego directo, 18,000 Barriles/día
  • Direct-fire API 560 heater, 18,000 Barrels/day
  • Crudo 20° API · 20% Agua y Sedimento (BS&W)
  • 20° API crude oil · 20% Water & Sediment (BS&W)
  • Temperatura: 180°F · Caída de presión: 15 PSI
  • Temperature: 180°F · Pressure drop: 15 PSI
  • 4 pasos · Serpentín de 4" de diámetro
  • 4-pass · 4" coil diameter
  • Utilizado para producción temprana
  • Used for early production
Tablero de Control Horno Budare 2 Vista 1
Ingeniería y Fabricación Engineering & Fabrication
Tablero de Control — Horno Budare 2 (Vista 1)
Control Panel — Budare 2 Heater (View 1)

Diseño y fabricación de tablero de control NEMA 4X para el sistema de gestión de quemadores (BMS) y parada de emergencia (ESD) del horno Budare 2. Integra PLC Allen Bradley y controladores de llama Honeywell bajo norma NFPA 8502.

Design and fabrication of a NEMA 4X control panel for the burner management system (BMS) and emergency shutdown (ESD) of the Budare 2 heater. Integrates Allen Bradley PLC and Honeywell flame controllers per NFPA 8502.

  • Tablero de control NEMA 4X
  • NEMA 4X control panel enclosure
  • Sistema BMS y ESD basado en NFPA 8502
  • BMS and ESD system per NFPA 8502
  • PLC marca Allen Bradley
  • Allen Bradley PLC
  • Control de llama marca Honeywell
  • Honeywell flame controller
Tablero de Control Horno Budare 2 Vista 2
Ingeniería y Fabricación Engineering & Fabrication
Tablero de Control — Horno Budare 2 (Vista 2)
Control Panel — Budare 2 Heater (View 2)

Vista interior del tablero de control mostrando el cableado, terminales y componentes de instrumentación. Este panel demuestra la calidad de integración y los estándares de fabricación aplicados en nuestros sistemas de control.

Interior view of the control panel showing wiring, terminals and instrumentation components. This panel demonstrates the integration quality and fabrication standards applied in our control systems.

  • Tablero de control NEMA 4X
  • NEMA 4X control panel enclosure
  • Sistema BMS y ESD basado en NFPA 8502
  • BMS and ESD system per NFPA 8502
  • PLC marca Allen Bradley
  • Allen Bradley PLC
  • Control de llama marca Honeywell
  • Honeywell flame controller
Reparación Tratador Crudo Emulsión 50,000 BPD
Reparación Repair 2009
Reparación Tratador de Crudo/Emulsión — 50,000 BPD
Crude/Emulsion Treater Repair — 50,000 BPD
Cliente: PDVSA – CALORTECH
Client: PDVSA – CALORTECH

Rediseño completo y reparación de un tratador de crudo/emulsión de alta capacidad bajo norma ASME Sección 8 División 1. El proyecto restauró la capacidad productiva crítica del equipo, actualizando el recipiente para cumplir con los códigos de seguridad vigentes.

Complete redesign and repair of a high-capacity crude/emulsion treater per ASME Section 8 Division 1. The project restored the equipment's critical production capacity while upgrading the vessel to meet current safety codes.

  • Rediseño bajo ASME Sección 8 División 1
  • Redesigned per ASME Section 8 Division 1
  • Crudo 16° API
  • 16° API crude oil
  • Temperatura: 240°F · Presión: 90 PSI
  • Temperature: 240°F · Pressure: 90 PSI
Tratador con Aislamiento Térmico 50,000 BPD
Reparación Repair 2009
Tratador con Aislamiento Térmico — 50,000 BPD
Thermally Insulated Treater — 50,000 BPD
Cliente: PDVSA – CALORTECH
Client: PDVSA – CALORTECH

Reparación y aislamiento térmico de un tratador de 50,000 BPD, rediseñado bajo ASME Sección 8 División 1. El aislamiento mejoró la eficiencia energética del equipo y redujo las pérdidas de calor durante el proceso de deshidratación de crudo.

Repair and thermal insulation of a 50,000 BPD treater, redesigned per ASME Section 8 Division 1. The insulation improved the equipment's energy efficiency and reduced heat losses during the crude dehydration process.

  • Rediseño bajo ASME Sección 8 División 1
  • Redesigned per ASME Section 8 Division 1
  • Crudo 16° API
  • 16° API crude oil
  • Temperatura: 240°F · Presión: 90 PSI
  • Temperature: 240°F · Pressure: 90 PSI
Sistema Tratamiento de Crudo COB
Ingeniería y Fabricación Engineering & Fabrication 2011
Sistema de Tratamiento de Crudo — COB
Crude Oil Treatment System — COB
Cliente: PETROPIAR – TRANSOIL
Client: PETROPIAR – TRANSOIL

Suministro e instalación de internos electrostáticos para aumentar la capacidad de tratamiento de crudo en la estación COB. Incluyó tablero BMS con PLC Allen Bradley para automatización del proceso de deshidratación.

Supply and installation of electrostatic internals to increase crude treatment capacity at the COB station. Included BMS panel with Allen Bradley PLC for dehydration process automation.

  • Suministro de internos electroestáticos para aumentar capacidad de tratamiento de crudo
  • Supply of electrostatic internals to increase crude oil treatment capacity
  • Tablero BMS con PLC Allen Bradley en gabinete NEMA 4X
  • BMS panel with Allen Bradley PLC in NEMA 4X enclosure
Mantenimiento Tratadores Batería 12 Guárico
Mantenimiento Maintenance 2010
Mantenimiento 6 Tratadores Térmicos — Batería 12, Guárico
Maintenance of 6 Thermal Treaters — Battery 12, Guárico
Cliente: PDVSA Boyacá
Client: PDVSA Boyacá

Mantenimiento integral de 6 tratadores térmicos en la Batería 12 del estado Guárico. El alcance incluyó rediseño de internos, suministro de nueva instrumentación y recuperación estructural mecánica de cada unidad.

Comprehensive maintenance of 6 thermal treaters at Battery 12 in Guárico state. The scope included internal redesign, new instrumentation supply and structural-mechanical recovery of each unit.

  • Rediseño, suministro de nueva instrumentación y recuperación estructural mecánica
  • Redesign, new instrumentation supply, and structural-mechanical recovery
  • Capacidad: 2,500 Barriles · Crudo 32° API
  • Capacity: 2,500 Barrels · 32° API crude oil
  • Con 20% de agua y sedimento
  • With 20% water and sediment
Tren de Gas Dayfran para Hornos
Ingeniería y Fabricación Engineering & Fabrication
Tren de Gas DAYFRAN para Hornos
DAYFRAN Fuel Gas Train for Heaters

Sistema de cabezales de distribución de gas combustible diseñado bajo NFPA 8502 para alimentar múltiples hornos industriales. Todo el equipamiento es a prueba de explosión, clasificación Clase 1 División 2, garantizando operación segura en ambientes peligrosos.

Fuel gas header distribution system designed per NFPA 8502 to feed multiple industrial heaters. All equipment is explosion-proof, Class 1 Division 2, ensuring safe operation in hazardous environments.

  • Sistema de cabezales de distribución de gas combustible para hornos
  • Fuel gas header distribution system for heaters
  • Basado en NFPA 8502
  • Based on NFPA 8502
  • A prueba de explosión — Clase 1, División 2
  • Explosion-proof — Class 1, Division 2
Ingeniería y Fabricación Engineering & Fabrication
Sistemas de Generación Portátiles de Vapor Saturado
Portable Saturated Steam Generation Systems

Generadores portátiles de vapor saturado de alta presión, diseñados para operaciones de inyección de vapor en campo. Los sistemas operan a 1,600 PSI con capacidad de 11 Ton/Hr e incluyen planta de suavizado de agua integrada para proteger los equipos.

High-pressure portable saturated steam generators designed for field steam injection operations. Systems operate at 1,600 PSI with 11 Ton/Hr capacity and include an integrated water softening plant to protect the equipment.

  • Presión de operación: 1,600 PSI
  • Operating pressure: 1,600 PSI
  • Capacidad de inyección: 11 Ton/Hr
  • Injection capacity: 11 Ton/Hr
  • Incluye planta de suavizado de agua
  • Includes water softening plant
Diseño de Plantas de Deshidratación y Desalación de Crudo Ingeniería y Fabricación Engineering & Fabrication
Ingeniería y Fabricación Engineering & Fabrication
Diseño de Plantas de Deshidratación y Desalación de Crudo
Crude Dehydration and Desalting Plant Design

Diseño de proceso completo para plantas de deshidratación y desalación de crudo, incluyendo diagramas de flujo, especificaciones de equipos y sistemas de control. Estas plantas son fundamentales para el acondicionamiento del crudo antes de su transporte y procesamiento en refinerías.

Complete process design for crude dehydration and desalting plants, including flow diagrams, equipment specifications and control systems. These plants are essential for crude conditioning before transport and refinery processing.

  • Diseño de proceso de plantas completas
  • Complete plant process design
  • Sistemas de deshidratación y desalación
  • Dehydration and desalting systems
  • Diagramas de flujo e ingeniería de detalle
  • Flow diagrams and detail engineering
Reparación Repair
Separadores Tratadores Repotenciados
Repowered Treater Separators

Repotenciación de separadores tratadores para extender su vida útil y mejorar su eficiencia operativa. El trabajo incluyó rediseño de internos, actualización de instrumentación y refuerzo estructural de los recipientes.

Repowering of treater separators to extend their service life and improve operational efficiency. The work included internal redesign, instrumentation upgrades and structural reinforcement of the vessels.

  • Rediseño y repotenciación de internos
  • Internal redesign and repowering
  • Actualización de instrumentación
  • Instrumentation upgrades
  • Refuerzo estructural de recipientes
  • Vessel structural reinforcement
Ingeniería y Fabricación Engineering & Fabrication
Separadores Tratadores
Treater Separators

Diseño y fabricación de separadores tratadores para el procesamiento de crudo en estaciones de flujo. Estos equipos integran sistemas de calentamiento y separación para la deshidratación efectiva del crudo pesado.

Design and fabrication of treater separators for crude processing at flow stations. These units integrate heating and separation systems for effective heavy crude dehydration.

  • Diseño y fabricación integral
  • Full design and fabrication
  • Sistemas de calentamiento y separación integrados
  • Integrated heating and separation systems
  • Procesamiento de crudo pesado
  • Heavy crude processing
Ingeniería y Fabricación Engineering & Fabrication
Tanques API
API Tanks

Fabricación de tanques de almacenamiento bajo normas API para la industria petrolera. Los tanques fueron diseñados y construidos cumpliendo con los más estrictos estándares de calidad y seguridad para el manejo de hidrocarburos.

Fabrication of storage tanks per API standards for the oil industry. The tanks were designed and built meeting the strictest quality and safety standards for hydrocarbon handling.

  • Fabricación bajo normas API
  • Fabrication per API standards
  • Tanques de almacenamiento de hidrocarburos
  • Hydrocarbon storage tanks
  • Control de calidad en todas las fases
  • Quality control in all phases
Ingeniería y Fabricación Engineering & Fabrication
Hornos de 40 MMBTU
40 MMBTU Heaters

Diseño y fabricación de hornos industriales de alta capacidad con 40 MMBTU de potencia térmica. Estos equipos fueron desarrollados para operaciones de tratamiento de crudo a gran escala en campos petroleros venezolanos.

Design and fabrication of high-capacity industrial heaters rated at 40 MMBTU thermal output. These units were developed for large-scale crude treatment operations in Venezuelan oil fields.

  • Capacidad térmica: 40 MMBTU
  • Thermal capacity: 40 MMBTU
  • Diseño de ingeniería y fabricación completa
  • Full engineering design and fabrication
  • Operaciones de tratamiento de crudo a gran escala
  • Large-scale crude treatment operations
Ingeniería y Fabricación Engineering & Fabrication
Hornos Linde/Dayfran
Linde/Dayfran Heaters

Diseño y fabricación de hornos en colaboración con Linde, combinando la experiencia de ambas empresas en tecnología de combustión y procesamiento térmico para aplicaciones industriales de alta exigencia.

Heater design and fabrication in collaboration with Linde, combining both companies' expertise in combustion technology and thermal processing for demanding industrial applications.

  • Colaboración tecnológica Linde/Dayfran
  • Linde/Dayfran technology collaboration
  • Tecnología avanzada de combustión
  • Advanced combustion technology
  • Aplicaciones industriales de alta exigencia
  • Demanding industrial applications
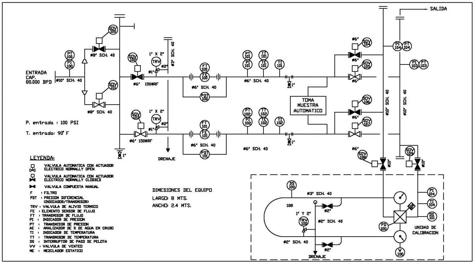
Unidades de Transferencia de Custodia (LACT) Sistemas Systems
Sistemas Systems
Unidades de Transferencia de Custodia (LACT)
Lease Automatic Custody Transfer (LACT) Units

Diseño y fabricación de unidades LACT para la medición fiscal y transferencia de custodia de hidrocarburos. Estos sistemas garantizan la precisión en la medición volumétrica durante las operaciones de venta y despacho de crudo.

Design and fabrication of LACT units for fiscal measurement and custody transfer of hydrocarbons. These systems ensure volumetric measurement accuracy during crude sales and dispatch operations.

  • Medición fiscal y transferencia de custodia
  • Fiscal measurement and custody transfer
  • Precisión volumétrica certificada
  • Certified volumetric accuracy
  • Sistemas automatizados de despacho
  • Automated dispatch systems
Ingeniería y Fabricación Engineering & Fabrication
Internos para Separadores Multifásicos
Multiphase Separator Internals

Diseño especializado de componentes internos para separadores multifásicos, optimizando la eficiencia de separación de petróleo, gas y agua. Estos internos mejoran significativamente el rendimiento de los equipos existentes.

Specialized design of internal components for multiphase separators, optimizing oil, gas and water separation efficiency. These internals significantly improve the performance of existing equipment.

  • Diseño de internos especializados
  • Specialized internal design
  • Separación optimizada de petróleo, gas y agua
  • Optimized oil, gas and water separation
  • Mejora de rendimiento de equipos existentes
  • Existing equipment performance improvement
Ingeniería y Fabricación Engineering & Fabrication
Hornos de 22 MMBTU
22 MMBTU Heaters

Diseño, fabricación y arranque de hornos industriales de 22 MMBTU para tratamiento térmico de crudo. El proyecto abarcó desde la ingeniería de detalle hasta la puesta en marcha exitosa en campo, demostrando la capacidad integral de Dayfran.

Design, fabrication and startup of 22 MMBTU industrial heaters for crude thermal treatment. The project spanned from detail engineering to successful field commissioning, demonstrating Dayfran's comprehensive capabilities.

  • Capacidad térmica: 22 MMBTU
  • Thermal capacity: 22 MMBTU
  • Alcance completo: diseño, fabricación y arranque
  • Full scope: design, fabrication and startup
  • Tratamiento térmico de crudo en campo
  • Field crude thermal treatment
Sistemas Systems
Unidades de Medición de Vapor
Steam Measurement Units

Diseño y fabricación de unidades de medición de vapor para el monitoreo preciso de flujos en operaciones de inyección. Estos sistemas permiten el control y registro continuo de los parámetros de vapor inyectado.

Design and fabrication of steam measurement units for precise flow monitoring in injection operations. These systems enable continuous control and recording of injected steam parameters.

  • Medición precisa de flujo de vapor
  • Precise steam flow measurement
  • Monitoreo y registro continuo
  • Continuous monitoring and recording
  • Diseñado para operaciones de inyección
  • Designed for injection operations